列管式油冷却器(GLCQ/GLLQ型,JB/T7356-94)
一、概述
GLCQ、GLLQ型列管式冷却器适用于冶金、矿山、轻工、电力、化工等行业的稀油润滑装置、液压站和油压设备中,将热工作油冷却到要求的温度;冷却器的工作温度≤100℃,工作压力≤1.6MPa,一般工作压力≤1MPa;产品体积小、重量轻、冷却效果好,便于维护检修;GLCQ型的换热管采用紫铜翅片管,热交换系数>300kcal/m2·h·℃;GLLQ型采用裸(光)管,热交换系数>200kcal/m2·h·℃。

二、技术参数


热交换系数是指油冷却器在表中规定的工况条件下测得的K值。

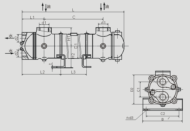
三、外形结构及尺寸

GLCQ型冷却器外形图

 GLCQ型冷却器外形尺寸
 注:*标注公称压力值
 GLLQ型冷却器外形图
 GLLQ型冷却器外形尺寸
1、第一个*标注公称压力值,第二个*标注水管程数(四管程标S,双管程不标注)。下表同。
2、法兰连接尺寸按JB/T81《凸面板式平焊钢制管法兰》中PN=1MPa的规定。
 GLLQ型立式冷却器外形图
 LLQ型立式冷却器外形尺寸
注:法兰连接尺寸按JB/T81《凸面板式平焊钢制管法兰》中PN=1MPa的规定。

四、型号标注说明